随着社会文明的进步,中国古老的堪舆术也就是风水逐渐步入了群众的生活中并得到了广泛的应用。这也让现在的房产开发商更加注重楼盘风水的建筑规划,但是很很多老总却只针对楼盘的风水做调理却忽略了还有一个潜在的入口,那就是楼盘的售楼部。
著名风水大师梁光耀老师通过天目虹枫集团管董事长的邀请针对旗下的嘉汇房地产开发有限公司开发的嘉汇御景园进行全方位勘察,发现原来的售楼部欠缺风水的庇护,特此总结了目前潜在的问题并给出了最佳调理方案。
一、楼盘现状
随着政府对控制房产政策相续出台,各楼盘之间的竞争日趋激烈,产品同质化日益严重。各种名目繁多的楼盘价格战让人眼花缭乱,加之消费者心态日趋成熟和理性,导致楼盘销售量日趋下滑和滞销现象。如何改变这种局面,从残酷竞争中取得优势,整合各方资源,多方面拓展赢利模式,从坐商向行商转变。环境能量布局可以从根本上解决楼盘营销中的困惑和发展瓶颈。“欲多则心散,心散则志衰”,楼盘要实现快速销售,资金快速回笼是本楼盘当务之急。
二、楼盘滞销根本原因分析
1、原售楼部违背了风水环境能量积聚的原理,影响制约着员工能力的发挥及市场的拓展。导致员工有志难伸,男人发挥不出应有的能量,不能够及时提出行之有效售楼方案。
2、整体楼盘由于开始没有融入风水环境能量来布局调理,导致很多楼层不具备风水能量,所以这些风水能量欠佳的房子,只能吸引那些霉运的人过来购买,导致购买力不够,也是说明现在宣传力度还不够,所以为了更好的吸纳顾客,赢得售楼概率,还必须要大量做好楼盘风水的宣传工作。
3、原售楼部不具备吸纳顾客的环境能量,在开始的时候只可以把那些具备好风水、好环境的房子销售掉,那是因为那些房子本身具备吸纳客户的能量,所才容易销售,要是开始融入风水顾问作为指导的话,可以把那些具备吸引客户能量的房子分批推出,甚至把好风水房放到最后销售,这样才能够不断的吸纳客户前来购买和观摩,但这样的机会也没有了,因为那些好能量的房子都卖光了。所以只有现在加强售楼部的环境能量选址和重新布局。
4、经营模式因素
售楼人员及管理层惯性思维经营,总是被动等顾客,而不是主动寻找。
5、产品因素
产品价值塑造不力,形式单一,产品附加值低,产品销售渠道不畅,售后服务滞后。
6、服务因素
服务态度差,效率低,服务流程繁琐,渠道不畅等。
7、员工因素
仪表不整,言行不一,缺乏诚意与责任心,知识面窄,整体素质差等。
8、企业形象因素
对产品形象,服务形象,员工形象,企业文化等不满。
9、顾客因素
例如顾客对产品或服务的期望高,而实际消费体验效果比较差,产生不满情绪,导致顾客流失。
10、竞争者因素
竞争者通过建立某种竞争优势,吸引走了本楼盘的顾客。
三、环境布局执行方案
1、售楼部重新选址布局
方案一:迁到对面商铺(3栋楼27-29号),售楼部不适合在明显位置要有神秘感,庭院深深、曲径通幽,路两旁花团锦簇、旌旗招展、彩带飘飘、给顾客一种颇显尊贵和受尊敬的迎纳的气势。让顾客为观摩你们售楼部的神秘性和气派性也要驻足观看,从而赢得更多的上客量,起到了推波助澜一石激起千层浪的感觉。而迁到对面的这样位置,正好可以营造这总感觉。利于2013年和2014年的楼盘销售和推广。
方案二:把售楼部迁到天目虹枫大酒店一楼大厅,此位置也要重新布局和打造,只有这样才有利于2013年的楼盘销售。
2、售楼部设计布局
①、设计、定向
②、装潢设计
③、财务室布局
④、市场部布局
⑤、领导办公室布局
3、营销方案定位
①、客户心理学
②、如何定位3A客户
③、营销话术设计与实战训练
④、创新营销模式
⑤、超级沟通技巧
4、培训(售楼部全体人员系统、风水销售实战培训)
A、掌握成功修炼独家秘诀,打造销售高手不败金身
(1)、售楼团队肩负着完成地产销售的临门一脚的重要任务,因此越是大盘越是高档楼盘,对售楼人员的知识和素质要求越高。
(2)、房地产销售人员必须了解风水知识,把风水概念引进房产销售环节,迎合客户,创造和谐融洽客户关系,促成销售,形成风水方面的服务特色,进而在激烈的市场竞争中占据特色优势。
B、房产促销过程中降价外的新选择融入风水环境能量
①、提升无形价值
②、迎合大众心理
③、关注高端客户
④、打造新的卖点
⑤、吸引意向眼球
⑥、缩短销售周期提升顾客的购买欲望,如何塑造高绩效的能量团队(职业心态、责任心、团队凝聚力,绩效管理)
C、楼盘融入风水之价值:
● 稀有性:全程融入风水元素的房源稀少
● 吉祥性:关乎健康、和睦、成功、兴旺
● 区域性:南方、发达地区已经普及
● 层次性:精英人士、政府官员、富有者更为重视
D、职业形象与礼仪
E、赢在执行力
5、风水销售手段与媒体推广
(1)、宣传
①、开发商风水方面的良苦用心。
②、楼盘的建筑风水形势。
(2)、培训
楼盘销售人员掌握必备的风水知识,了解楼盘的风水特点。
(3)、大师
①、常驻
②、接受客户咨询
③、协助挑选住房(必须另付费)。
(4)、讲座
聚拢人气,扩大影响,塑造品牌。
(5)、评估
接受有关部门的环境风水勘察和评价。
(6)、DM册、杂志、刊物
(7)、车载广告
(8)、户外广告
(9)、活动推广
6、人文居住环境讲座:
提升楼房品牌、提升宣传力度、显得老板用心为客户着想,提升购买楼盘所提供的超值服务,从而赢得客户好评,获取更多的客户口碑宣传,一招鲜吃遍天。因为本小区注重风水能量打造,让客户住的更安心、更放心。这就是风水环境能量打造的宣传效果。
四、环境布局具体实施流程
1、诊断、调研
| ● 售楼部诊断和环境勘探 | 2天 |
| ● 销售部团队调研 | 1天 |
2、调理、布局
| ● 出整体布局方案 | 2天 |
| ● 甲方确定布局售楼部的准确地点 | 2天 |
| ● 平面布局方案 | 2天 |
| ● 销售部布局 | 1天 |
| ● 财务室布局 | 1天 |
| ● 领导办公室布局 | 1天 |
| ● 跟进环境调理布局 | 2天 |
| ● 售楼部人员培训 | 1天 |
| ● 《打造高能量人文居住环境》讲座 | 2天 |


嘉汇御景园原来的售楼部展示中心大门

著名风水大师梁光耀老师亲自现场针对原售楼部勘察风水利弊

这是嘉汇御景园原来的售楼部

天道玄通风水大师梁光耀老师与天目虹枫集团董事长管总签定合同

天道玄通风水大师梁光耀老师与天目虹枫集团董事长管总签定合同

天道玄通风水大师梁光耀老师与天目虹枫集团董事长管总签定合同

著名风水大师梁光耀老师为陶总讲解售楼部风水布局规划

著名风水大师梁光耀老师为陶总讲解售楼部风水布局规划

著名风水大师梁光耀老师为陶总讲解售楼部风水布局规划

梁光耀老师现场亲自指导-新售楼部最初照片

著名风水大师梁光耀老师现场亲自指导并审核

著名风水大师梁光耀老师现场亲自指导并审核

新选的售楼部最初照片

著名风水大师梁光耀老师现场亲自指导并审核

新选的售楼部最初照片

新选的售楼部最初照片

著名风水大师梁光耀老师现场亲自指导并审核

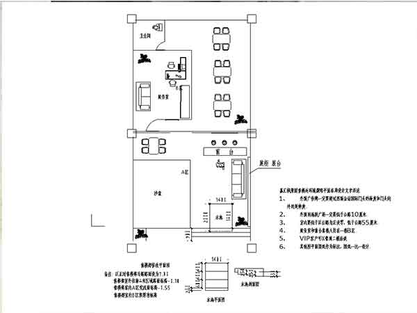
著名风水大师梁光耀老师设计的平面图

通过设计的外观平面效果图

著名风水大师梁光耀老师给嘉汇御景园所有员工进行房地产风水培训2

著名风水大师梁光耀老师给嘉汇御景园所有员工进行房地产风水培训

著名风水大师梁光耀老师给嘉汇御景园所有员工进行房地产风水培训3

新售楼部正式于9月12日隆重开业

梁光耀老师与陶总正在对时间

著名风水大师梁光耀老师为嘉汇枫景园新售楼部开张点起第一炮

新的售楼部开业当天意向买房的人络绎不绝

著名风水大师梁光耀老师与嘉汇置业陶总合影

著名风水大师梁光耀老师与嘉汇置业陶总合影

不起眼的一角他们却给我们带来着美妙的歌声

通过布局后的新售楼部效果

陶总与风水大师梁光耀老师一起商讨

新的售楼部开业当天意向买房的人络绎不绝

新的售楼部开业当天意向买房的人络绎不绝
楼盘销售业绩汇总表

宴席上嘉汇御景园陶总为表达些亲自向著名风水大师梁光耀老师敬酒
